THE WARICH - 4-ROOM ROOF TERRACE APARTMENT IN 1180 VIENNA
Quiet and urban living in the 18th district. The modern apartment building is located not far from the Kutschkermarkt in a quiet side street. Due to the proximity to the city center, the apartments are attractive for owner-occupancy as well as investment property.
Key data
€ 1.446.000,-
Contact

Object details
Description
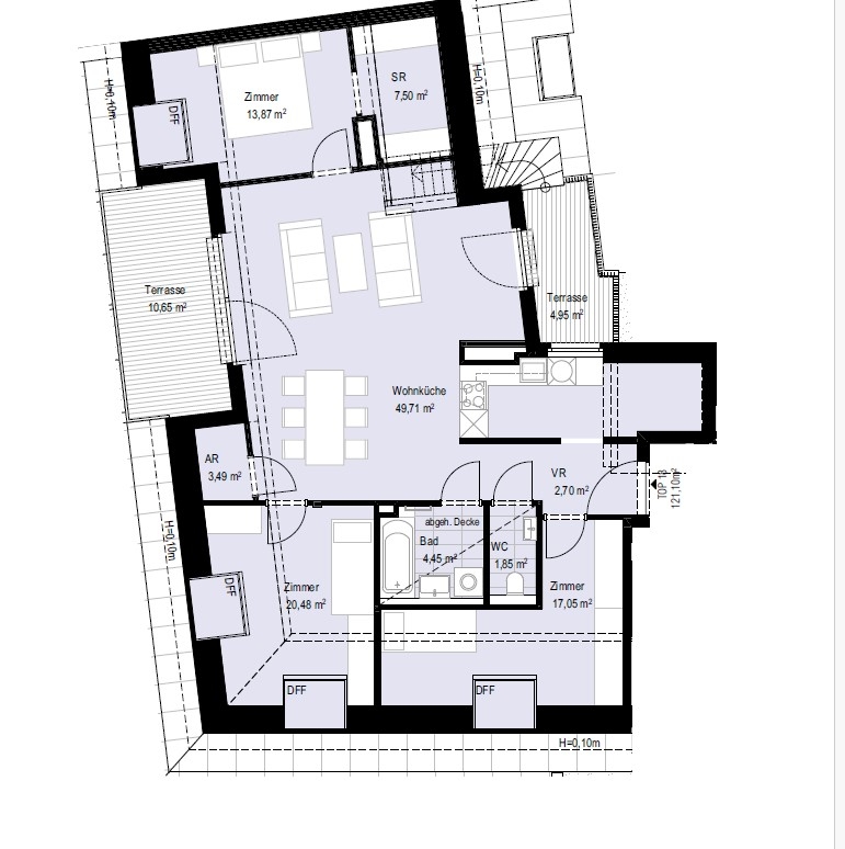
In the last elevator floor of the house awaits you this grandiose 4-room family apartment. Via the anteroom together with a bedroom, the separate toilet and the bathroom with bathtub you reach the almost 50m² large eat-in kitchen with storage room, two further bedrooms - one of them with its own closet space - the west-facing roof terrace on the living level as well as the courtyard-facing terrace with access to the large roof terrace with all-round view.
Suburban feeling meets urbanity
South of Währingerstraße, within walking distance of Kutschkermarkt and the General Hospital, a modern new construction project is being built.
The total of 18 residential units with well thought-out floor plans are spread over only 5 residential floors. The apartment sizes vary between 2 and 4 rooms and offer optimal possibilities to unfold according to your mood. The predominantly floor-to-ceiling windows and the excellent orientations of the individual units guarantee bright and friendly apartments.
Furniture
Equipment:
- Largely loggias, balconies or terraces, on the ground floor private gardens.
- In-house underground garage with 13 parking spaces (optional)
- Own cellar compartments
- Underfloor heating via district heating
- Mainly floor-to-ceiling windows with preparation for electrical sun protection outside
- Air conditioning in the attics
- High-quality equipment
- In-house children's playground
Location
Location/Infrastructure:
- Near city center
- Near Kutschkermarkt, Vienna Main University, University of Natural Resources and Applied Life Sciences, Medical University of Vienna, General Hospital (AKH), Vienna Volksoper
- Ideal local supply (supermarkets, drugstores, bakery, pharmacy)
- Excellent public transport connections
- U6 (Michelbeuern/AKH)
- Streetcar lines: 40,41,42
- Attractive offer of schools and kindergartens
- Schubert park
Miscellaneous
All information is without guarantee and based on information from the client.
Please understand that we can only answer inquiries with complete address and telephone number! We point to a close economic relationship with the client and to our activity as a dual broker.






















