MILLER TOWNHOUSE - SPACIOUS ROOF TERRACE APARTMENT IN PRIME LOCATION
Quiet and urban living in the 6th district. The modern apartment building is located not far from Mariahilferstrasse in a quiet side street. Due to the proximity to the city center, the apartments are attractive for owner occupancy as well as investment property.
Key data
€ 1.153.000,-
Contact

Object details
Description
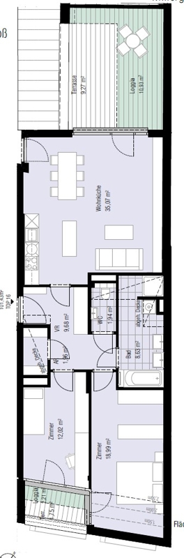
This dream home leaves nothing to be desired: optimal layout, two-sided orientation, dream terrace in the courtyard AND centrally accessible. Your new domicile is divided as follows: Anteroom, storage room, separate toilet, bathroom (incl. shower AND bathtub!!), 1 large master bedroom, 1 other spacious bedroom (both mi access to the loggia), as well as the eat-in kitchen with the heart of the apartment: the well-cut open space of about 21m²!
Whether as a shared apartment or as a family apartment, this apartment is guaranteed to fulfill every living dream.
Residential project with green view
Opposite the "Minna-Lachs-Park" and not far from the shopping mile "Mariahilfer Straße" as well as the Westbahnhof a modern new construction project is being built.
The total of 20 residential units and 3 townhouses with well thought-out floor plans, which are distributed over a total of 6 floors, vary between 1 and 3 rooms and offer optimal opportunities to develop according to your mood. The predominantly floor-to-ceiling windows and the excellent orientations of the individual units guarantee bright and friendly apartments.
Furniture
Equipment:
- Mostly loggias, balconies or terraces
- 5 parking spaces in the courtyard (optional)
- Own cellar compartments
- Underfloor heating via gas central heating in combination with thermal solar system
- Mainly floor-to-ceiling windows with preparation for electrical sun protection outside
- Air conditioning in the attics
- High quality equipment
- In-house children's playground
Location
Location/Infrastructure:
- Near city center
- Close to Mariahilferstrasse, Westbahnhof, Raimundtheater
- Ideal local supply (supermarkets, drugstores, bakery, pharmacy)
- Excellent public transport connections
- Subway stations of lines 3 and 6 (Westbahnhof and Zieglergasse)
- Streetcar lines: 5, 6, 9, 18, 52, 58
- Attractive offer of schools and kindergartens
- Minna Salmon Park
Miscellaneous
All information is without guarantee and based on information from the client.
Please understand that we can only answer inquiries with complete address and telephone number! We point to a close economic relationship with the client and to our activity as a dual broker.















