NEW CONSTRUCTION 2-ROOM BALCONY APARTMENT
Close-to-nature living near the water. Only a few minutes walk from the Old Danube and the Danube center is this great construction project on own land with a total of 22 condominiums in sizes from 46 m² to 120 m² and 2. to 5. rooms.
Key data
€ 373.230,-
Contact

Object details
Description
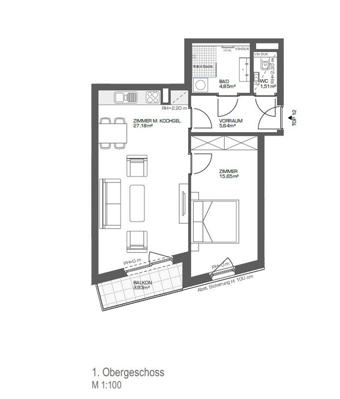
This perfectly cut 2 room apartment is located on the 1st floor and is divided into an anteroom with adjoining shower room and guest toilet as well as a bright eat-in kitchen with balcony access and a bedroom. The good room layout of the apartment provides a friendly atmosphere and a pleasant feeling of space.
Only a few minutes walk from the Old Danube and the Danube Center, this great new construction project is being built on owner-occupied land with a total of 22 condominiums ranging from 46 m² to 120 m² and 2, 3, 4 or 5 rooms. Generous open spaces in the form of terraces, balconies or private gardens extend the living space outdoors. Excellent public transport connections, very good local amenities and a wide range of leisure activities within a 5-minute walk guarantee the highest quality of life.
The apartment offer is rounded off by a general garden located in the courtyard with a small children's playground, which is accessible to all residents.
Furniture
- Quality parquet in oak
- wood-aluminum windows or terrace and balcony doors with insulating glazing
- electrically operated external blinds/shutters
- Heating and cooling via air-source heat pumps
- underfloor heating
- Underground parking space on request for an additional charge
- elevator system
- cellar room
- Bicycle and baby carriage storage room
- General garden with small children's playground and a pool
Location
Enjoy the perfect mix of local recreation area and proximity to the city
as well as the numerous recreational opportunities in the immediate vicinity, which guarantee a high quality of life. The Old Danube, as well as the Danube Park and various lidos are practically next door and can be reached quickly after a short walk. A variety of shopping opportunities await you in the nearby Donauzentrum with over 200 stores . But also kindergarten, schools and doctors are in the immediate vicinity.
The U1 station Kagran is within 5 minutes walking distance. From there you can reach
you can reach the center of Vienna in only 15 minutes. The streetcar stations 2, 25 and 26 are located in 450m distance.
Miscellaneous
All data are without guarantee and are based on information provided by the client.
Please understand that we can only answer inquiries with complete address and telephone number! We point to a close economic relationship with the client and to our activity as a dual broker.





































