PENTHOUSE DREAM IN KAISERMÜHLEN WITH WATER VIEW AND POOL
Dream penthouse with wonderful views of the Alte Donau in the heart of Kaisermühlen.
Key data
€ 2.899.000,-
Contact

Object details
virtual viewing
Sehen Sie sich die Immobilie schon jetzt in einem interaktiven 3D-Rundgang an.
Description
Experience the ultimate living experience in the heart of Vienna with this exquisite penthouse for sale. This luxurious apartment is located in the coveted "Kaisermühlen" district - the pole position of the 22nd district - and impresses with its outstanding furnishings and spacious rooms on a living area of 229 m². The new building, which will only be completed in 2022, offers first-class living comfort and a luxurious ambience on first occupancy.
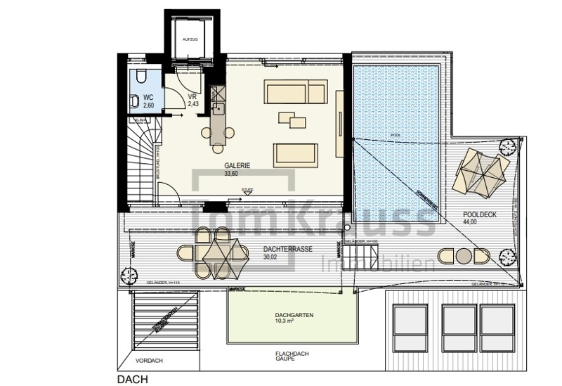
This exclusive top-floor penthouse can be reached via a private elevator. It is divided into a large eat-in kitchen (approx. 59.47 m²), master bedroom with en-suite bathroom with bathtub, shower and WC as well as terrace access, a further bedroom with terrace access, two bedrooms which share a shower room with WC and a guest WC. A staircase leads up to the gallery floor, where there is access to the roof terrace with pool, from where you can enjoy a fantastic panoramic view over the old Danube and into the city.
The impressive residential project "Der Goldene Schwan" is characterized by its wonderful location in the heart of Kaisermühlen.
The owner-occupied properties are divided into 2- to 5-room apartments and impress with well thought-out room concepts with usable living space ranging from 59 m² to 228 m². A special feature is the generous open spaces, which offer a magnificent view of the Danube, especially on the upper floors, and guarantee a maritime living atmosphere.
The exclusive location on the recreational oasis of the Old Danube makes the district in the 22nd district a sought-after residential area with an excellent quality of life. High-quality fixtures and fittings and light-flooded living spaces with floor-to-ceiling windows and glazing convey the best feeling of living.
Realize your dream of a unique life on the waterfront and get to know the successful blend of urban lifestyle and Viennese cosiness.
Furniture
Features:
- Intelligent and open floor plans
- All residential units with terrace, balcony, loggia or garden
- High quality windows and floor coverings
- Generous window areas and all-glass railings
- Brand-name sanitary fittings in the bathroom
- Modern and sustainable building style
- Convenient underground parking
Location
Transportation:
Bus station 92A is just around the corner and will take you to the U1 station Kaisermühlen/VIC in no time. This will take you to Vienna's city center in less than 15 minutes and to Praterstern in only 5 minutes (subway lines U1 and U2, bus 80 A, streetcar lines 5 and O, suburban railroad lines S1, S2, S3, S4, S7, regional bus 175).
The A22 Danube embankment freeway provides access to the two traffic junctions Kaisermühlen in the south and Reichsbrücke in the north. These guarantee a quick connection to the city of Vienna.
Infrastructure:
In the center of the recreational island of Kaisermühlen, there are countless shopping opportunities and a quality range of schools and kindergartens. Pharmacies, medical practices, the Sozialmedizinisches Zentrum Nord and the Krankenhaus Nord, which will open in 2019, provide optimal health care.
The Donauzentrum, Vienna's largest shopping experience, which can be reached in a few minutes by car, leaves nothing to be desired with its wide range of stores and top brands. Meanwhile, the area around the residential project in Schüttaustraße offers everything that makes leisure time on the water fun: boat rentals, sailing schools and lido pools invite you to have fun on the water in the middle of the city.
The lido Gänsehäufel - the island in the heart of the Viennese - offers countless leisure activities in the water as well as in the green.
Miscellaneous
All information is without guarantee and based on information from the client.
Please understand that we can only answer inquiries with complete address and telephone number! We point to a close economic relationship with the client and to our activity as a dual broker.




























