LUXURY - LOFT - PENTHOUSE - WITH POOL - SKYLINE AND WATER VIEW
This exclusive penthouse offers a unique lifestyle. The roof terrace with pool and breathtaking panoramic views over the old Danube and into the city round off the luxurious living experience. The impressive penthouse is characterized by its wonderful location in the heart of Kaisermühlen.
Key data
€ 2.899.000,-
Contact

Object details
Description
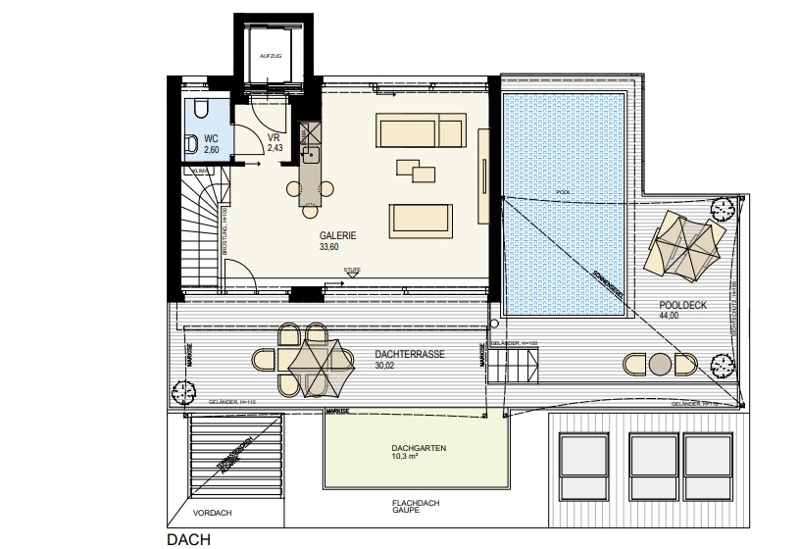
This exclusive top floor penthouse can be reached with its own elevator. It is divided into a large eat-in kitchen (approx. 59.47 m²), master bedroom with en-suite bathroom with bath, shower and toilet as well as terrace access, another bedroom with terrace access, two bedrooms which share a shower room with toilet and a guest toilet. A staircase leads to the gallery floor, where there is access to the roof terrace with pool from which you can enjoy a fantastic panoramic view over the old Danube to the city.
The impressive residential project "Der Goldene Schwan" is characterised by its magnificent location in the heart of Kaisermühlen.
The freehold properties are divided into 2- to 5-room apartments and impress with their well thought-out room concepts with living areas of 59 m² to 228 m². A special feature are the generous open spaces, which score especially in the upper floors with a great view of the Danube and guarantee a maritime living atmosphere.
The exclusive location on the recreational oasis of the Alte Donau makes this district in the 22nd district a sought-after residential area with an excellent quality of life. High-quality furnishings and light-flooded living spaces through floor-to-ceiling windows and glazing convey the best living feeling.
Realise your dream of a unique life by the water and get to know the successful mix of urban lifestyle and Viennese cosiness.
Furniture
Amenities:
- Intelligent and open floor plans
- All residential units with terrace, balcony, loggia or garden
- High-quality windows and floor coverings
- Generous window areas and all-glass railings
- Brand-name sanitary fittings in the bathroom
- Modern and sustainable building style
- Convenient underground garage
Location
Transport links:
Bus station 92A is just around the corner and will take you to the U1 station Kaisermühlen/VIC in no time. This will take you to Vienna's city centre in less than 15 minutes and to Praterstern in just 5 minutes (underground lines U1 and U2, bus 80 A, tram lines 5 and O, suburban railway lines S1, S2, S3, S4, S7, regional bus 175).
The A22 Danube embankment motorway provides access to the two traffic junctions Kaisermühlen in the south and Reichsbrücke in the north. These guarantee a quick connection to the city of Vienna.
Infrastructure:
In the centre of the recreational island Kaisermühlen you will find countless shopping possibilities and a high-quality offer of schools and kindergartens. Pharmacies, medical practices, the Sozialmedizinisches Zentrum Nord and the Krankenhaus Nord, which will open in 2019, provide optimal health care.
The Donauzentrum, Vienna's largest shopping experience, which can be reached in a few minutes by car, leaves nothing to be desired with its wide range of shops and top brands. Meanwhile, the area around the residential project in Schüttaustraße offers everything that makes leisure time on the water fun: boat rentals, sailing schools and lidos invite you to have fun on the water in the middle of the city.
The lido Gänsehäufel - the island in the heart of the Viennese - offers countless leisure activities in the water as well as in the green.
Miscellaneous
All details are without guarantee and are based on information from the client.
Please understand that we can only answer inquiries with complete address and telephone number! We point to a close economic relationship with the client and to our activity as a double broker.




















































