+43 (0)1 890 5920
DEENMexikoplatz 26/EG | A-1020 Wien

LEBENSRAUM ZUFUNFT - Garden apartment in the trendy district

Where urban living meets well-being: a modern residential project with style, light and quality of life.
Sustainably built with an air heat pump, district heating, component activation and photovoltaic system - for comfort with a future.
Commission-free, high-quality and stable in value - a home that inspires and convinces investors.

Key data

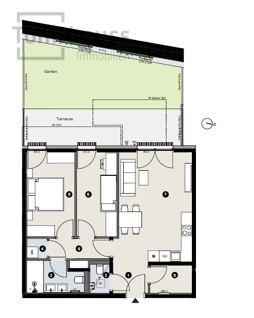
ZIP / Place: 1090 Wien
ImmoNr.: TKI-00706_05
Size: 64,54 m²
Number of Rooms: 3
Price:

€ 535.400,-

Top 05

Contact

Name: Edith Krauss
Edith Krauss