DAS WARICH - 3-ZIMMER DACHTERRASSENTRAUM ERSTBEZUG
Ruhig und urban Wohnen im 18. Bezirk. Das moderne Wohnhaus befindet sich unweit der des Kutschkermarkts in einer ruhigen Seitengasse. Aufgrund der Nähe zur Innenstadt sind die Wohnungen zur Eigennutzung, als auch als Anlageobjekt attraktiv.
Eckdaten
€ 999.900,-
Ansprechpartner

Objektdetails
Beschreibung
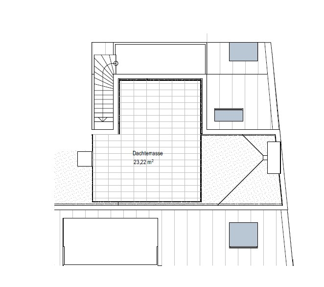
Im 2. Dachgeschoss und somit letzten Liftstock des Neubaus, erwartet Sie diese knapp 80m² große 3-Zimmerwohnung. Sie verteilt sich auf einen Vorraum nebst Schlafzimmer, eine über 34m² große Wohnküche mit einem Abstellraum, einem weiteren Schlafzimmer, einem separaten WC sowie einem Bad mit Badewanne. Vom Wohnraum aus hat man außerdem Zugang auf die südseitige Dachterrasse auf Wohnebene und die hofseitige Terrasse mit der außenliegenden Stiege auf die knapp 26m² große Panoramadachterrasse.
Vorstadtgefühl trifft Urbanität
Südlich der Währingerstraße, in fußläufiger Nähe zum Kutschkermarkt und dem Allgemeinen Krankenhaus, entsteht ein modernes Neubauprojekt.
Die insgesamt 18 Wohneinheiten mit durchdachten Grundrissen erstrecken sich auf nur 5 Wohngeschoße. Die Wohnungsgrößen variieren zwischen 2 und 4 Zimmern und bieten optimale Möglichkeiten, sich nach Lust und Laune zu entfalten. Die überwiegend bodentiefen Fenster und die hervorragenden Ausrichtungen der einzelnen Einheiten garantieren für helle und freundliche Wohnungen.
Ausstattung
Ausstattung:
• Großteils Loggien, Balkons oder Terrassen, im EG Eigengärten
• Hauseigene Tiefgarage mit 13 Stellplätzen (optional)
• Eigene Kellerabteile
• Fußbodenheizung über Fernwärme
• Überwiegend bodentiefe Fenster mit Vorbereitung für elektrischen Sonnenschutz außen
• Klimavorbereitung in den Dachgeschoßen
• Hochwertige Ausstattung
• Hauseigener Kinderspielplatz
Lage
Lage/Infrastruktur:
• Nähe Innenstadt
• Nähe Kutschkermarkt, Wiener Hauptuniversität, Universität für Bodenkultur, Medizinische Universität Wien, Allgemeines Krankenhaus (AKH), Wiener Volksoper
• Ideale Nahversorgung (Supermärkte, Drogerien, Bäckerei, Apotheke)
• Hervorragende öffentliche Anbindung
• U6 (Michelbeuern/AKH)
• Straßenbahnlinien: 40,41,42
• Attraktives Angebot an Schulen und Kindergärten
• Schubertpark
Sonstige Angaben
Sämtliche Angaben sind ohne Gewähr und beruhen auf Informationen des Auftraggebers.
Bitte haben Sie Verständnis, dass wir nur Anfragen mit vollständiger Anschrift und Telefonnummer beantworten können! Wir weisen auf ein wirtschaftliches Naheverhältnis zum Auftraggeber und auf unsere Tätigkeit als Doppelmakler hin.


















