FLORIDUS 35 I 37 - WOHNEN AN DER ALTEN DONAU
WOHNEN IM 21 - FLORIDUS 35I37 - In BEST-Lage des 21. Bezirks entsteht das traumhafte Eigentumsprojekt "FLORIDUS 35I37" mit Wohneinheiten von 1 bis 3 Zimmern. Das Gebäude fügt sich perfekt in die Umgebung ein und vereint wunderschöne Natur mit moderner Architektur zu einer perfekten Einheit. Insgesamt werden 40 Wohneinheiten und 4 Townhouses erricht. Ob Pacht- oder Eigengrund, wir haben die Wahl - Sie die Auswahl
Eckdaten
€ 432.300,-
Ansprechpartner

Objektdetails
Beschreibung
WOHNEN IM 21 – FLORIDUS 35I37
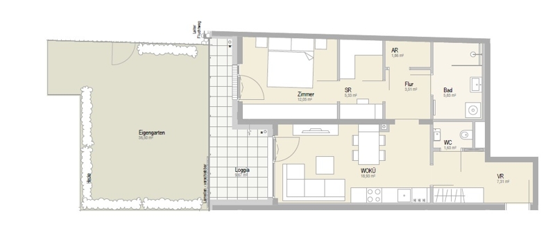
Hobbygärtner aufgepasst: zum Verkauf gelangt eine großzügig geschnittene 2-Zimmer Wohnung, welche keine Wünsche offenlässt und jedes Hobbygärnter Herz höherschlagen lässt. Die hofseitig ausgerichtete Gartenwohnung besticht vor allem durch ihre große Loggia und Ihren großen Eigengarten. Die Wohnung selbst gliedert sich in einen Vorraum nebst WC, eine Wohnküche, ein Badezimmer mit Dusche, einen Abstellraum, einen Schrankraum, welcher auch optimal als Home-Office genutzt werden kann, sowie ein Schlafzimmer, von welchem man ebenfalls in den Garten gelangt.
Gerne bieten wir Ihnen diese Immobilie auch mit Ust-Ausweisung, zum Anlegerpreis an
Die Einheit befindet sich auf Eigengrund, Sie haben auch die Wahl eine äquivalente Immobilie auf Pachtgrund zu einem günstigeren Kaufpreis zu erwerben. Kontaktieren Sie uns hierzu gerne für ein Angebot.
Zum Projekt:
Einen Katzensprung zur alten Donau, einem der schönsten Erholungsgebiete Wiens entsteht dieses exklusive Wohnprojekt, mit 40 Wohneinheiten und 4 Townhouses. Die Wohnungen im Gartengeschoß sind jeweils mit einem großzügigen Eigengarten geplant, die anderen Apartments bieten mit weitläufigen Terrassen und Balkonen sowie wunderschöne Natur vor der eigenen Haustür - ein unvergleichlicher Erholungswert für ihre zukünftigen Bewohner. Sichern Sie sich eine Immobilie in dieser Top-Lage des 21. Wiener Gemeindebezirks.
Ausstattung:
Die Immobilie verbindet angenehme Grünruhelage mit städtischem Komfort. Bei der Ausstattung der Wohnungen wurde Wert auf höchste Qualität gelegt. Diese absolute Traumwohnung lässt keine Wünsche offen und vereint urbanen Chick mit modernstem Design.
Infrastruktur:
Zahlreiche Ärzte, Apotheken, Kindergärten und Schulen befinden sich in der näheren Umgebung. Rund um den Bahnhof Floridsdorf befinden sich zahlreiche Nahversorger und sowie das Magistratische Bezirksamt. Das 2019 errichtete Krankenhaus Nord ist ebenso schnell erreichbar.
Zur Freizeitgestaltung laden der Nahe Wasserpark, der Floridsdorfer Aupark sowie die Donauinsel und das Floridsdorfer Bad ein.
Verkehrsanbindung:
Stationen der Autobus-Linie, 33A und N22 sowie der Straßenbahn-Linie 2, 25 und 25 sind fußläufig in wenigen Minuten erreichbar und bringen einen zum Bahnhof Floridsdorf mit der U-Bahnlinie U6, den Autobus-Linien 28A, 29A und 33A, Straßenbahn-Linien 25, 30 und 31, den S-Bahn-Linien S1, S2, S3, S4 und S7 sowie den Regionalbussen 228, 420, 462 und 850.
Mit dem Auto gelangen Sie in wenigen Minuten zur Autobahn A22 Donauuferautobahn.
Ausstattung
Bei der Ausstattung der Wohnungen wurde Wert auf höchste Qualität gelegt, denn diese Traumwohnungen lassen keine Wünsche offen:
- modernes Design
- durchdachte Grundrisse
- modernstes Heizsystem mittels Wärmepumpe
- Fußbodenheizung
- Stützkühlung über den Fußboden
- lichtdurchflutete Wohnräume
- zeitgemäßes, ansprechendes Feinsteinzeug in verschiedenen Farben (Format 60cmx60cm)
- Kunststoff-Verbund-Fenster mit Dreifach-Wärmeschutz-Isolierverglasung
- Raffstores INKLUSIVE
- Sicherheitseingangstür der Sicherheitsstufe Widerstandsklasse II
- zentrales Schließsystem
- Hochwertiger Marken-Parkettboden - FISCHGRÄT - Eiche - Kaschmir
- Garagenplätze auf Anfrage
- Klima-Anlage im Dachgeschoß gegen Aufpreis erhältlich
Auf Anfrage schicken wir Ihnen gerne die Ausstattungsbeschreibung!
Pachtzins für Haus 37 dzt. €3,00/m²/Monat
Lage
Überzeugen Sie sich selbst von einer der besten Lagen Wiens. Das einmalige Freizeitangebot der Alten Donau erfreut sich seit Jahren großer Beliebtheit.
Nutzen Sie die Möglichkeit und investieren Sie in eine werthaltige Anlage oder in Ihr neues Eigenheim nur wenige Schritte von der Alten Donau entfernt.
Nicht nur zahlreiche Bootsverleihe und Sportmöglichkeiten befinden sich vor der Haustüre, auch alle Geschäfte des täglichen Bedarfs sind in unmittelbarer Nähe.
Zum Hauptverkehrsknotenpunkt Floridsdorfer Brücke mit Zufahrt zur A22 sowie zum Wiener Gürtel benötigen Sie mit dem Auto lediglich wenige Minuten und auch der große Bahnhof Wien Floridsdorf mit S-Bahn und U-Bahn Linie U6 befindet sich nur wenige Schritte entfernt. Zusätzlich gibt es auch einen Bus, der Sie bequem zum Bahnhof bringt.
Lassen Sie sich dieses außergewöhnliche Projekt nicht entgehen und sichern Sie sich Ihre Traumwohnung!
Sonstige Angaben
Sämtliche Angaben sind ohne Gewähr und beruhen auf Informationen des Auftraggebers.
Bitte haben Sie Verständnis, dass wir nur Anfragen mit vollständiger Anschrift und Telefonnummer beantworten können! Wir weisen auf ein wirtschaftliches Naheverhältnis zum Auftraggeber und auf unsere Tätigkeit als Doppelmakler hin.
Lage

























































